
உலோக பாதுகாப்பு வேலிகள் தொழில்முறை சீன எஃகு கட்டமைப்பு உற்பத்தியாளரான லிவேயுவன் தயாரிக்கின்றன. தொழிற்சாலை நேரடி விற்பனை உத்தரவாதம் உத்தரவாதம். அவை சுவர்கள், வேலிகள் மற்றும் உறைகளுக்கான பாதுகாப்பு சாதனங்களாக பரவலாகப் பயன்படுத்தப்படுகின்றன. உங்கள் விசாரணையை நாங்கள் வரவேற்கிறோம்!
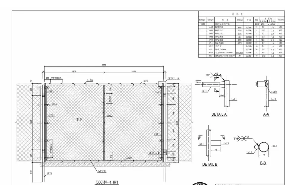
லிவேயுவனின் உலோக பாதுகாப்பு வேலிகளின் முக்கிய கட்டமைப்பு கூறுகளில் சட்டகம், நீளமான விட்டங்கள், இணைப்பிகள் மற்றும் ஆதரவு இடுகைகள் ஆகியவை அடங்கும். இந்த சட்டகம் முதன்மையாக பல்வேறு உலோகப் பொருட்களிலிருந்து கட்டப்பட்டுள்ளது மற்றும் தனிப்பட்ட வடிவமைப்பு தேவைகளைப் பூர்த்தி செய்ய பல்வேறு வடிவங்களில் வருகிறது. பிரேம் பொருட்களில் முதன்மையாக கால்வனேற்றப்பட்ட எஃகு தாள், கால்வனேற்றப்பட்ட சுற்று குழாய், கால்வனேற்றப்பட்ட சதுர குழாய் மற்றும் சங்கிலி இணைப்பு வேலி ஆகியவை அடங்கும். இந்த பொருட்கள் அவற்றின் ஆயுள் மற்றும் அரிப்பு எதிர்ப்பிற்காக தேர்ந்தெடுக்கப்படுகின்றன. வேலி பிரேம்களுக்கு இடையில் நீளமான விட்டங்கள் சரி செய்யப்படுகின்றன, அவற்றின் வலிமையையும் கடினத்தன்மையையும் மேம்படுத்துகின்றன, அவை மிகவும் நிலையானதாகவும் நம்பகமானதாகவும் இருக்கும்.
இணைப்புகள் வேலி உள்ளவர்களை ஆதரவு இடுகைகளுடன் இணைக்கும் முக்கிய கூறுகள். நாங்கள் கால்வனேற்றப்பட்ட எஃகு தாள், கால்வனேற்றப்பட்ட சுற்று எஃகு மற்றும் கால்வனேற்றப்பட்ட குழாய்களைப் பயன்படுத்துகிறோம். இந்த பொருட்கள் சிறந்த காற்று மற்றும் பூகம்ப எதிர்ப்பை வழங்குகின்றன, பயன்பாட்டின் போது தளர்த்துவதைத் தடுக்கின்றன மற்றும் வேலியின் பாதுகாப்பு மற்றும் நிலைத்தன்மையை உறுதி செய்கின்றன. ஆதரவு இடுகைகள் வேலியின் முதன்மை துணை கூறுகள். இருப்பிடம், தேவைகள் மற்றும் சூழலைப் பொறுத்து பலவிதமான ஆதரவு இடுகைகளைப் பயன்படுத்தலாம். இருப்பினும், இந்த இடுகைகளுக்குப் பயன்படுத்தப்படும் பொருட்கள் அதிக நிலைத்தன்மை, காற்று மற்றும் பூகம்ப எதிர்ப்பு மற்றும் பயன்பாட்டின் போது பாதுகாப்பை உறுதிப்படுத்த ஆயுள் ஆகியவற்றைக் கொண்டிருக்க வேண்டும்.


எங்கள் உலோக பாதுகாப்பு வேலிகள் நீக்கக்கூடியவை மற்றும் மீண்டும் பயன்படுத்தக்கூடியவை. அவற்றின் உயரம், அகலம் மற்றும் இணைப்பு முறைகள் வாடிக்கையாளர் தேவைகள் மற்றும் பயன்பாட்டு காட்சிகளுக்கு ஏற்ப வடிவமைக்கப்பட்டு தயாரிக்கப்படலாம், இது பாதுகாப்பு மற்றும் சுற்றுச்சூழல் நட்பை உறுதி செய்கிறது.


எங்கள் உலோக பாதுகாப்பு வேலிகள் பிற கட்டிடங்கள் மற்றும் சாலைகளிலிருந்து கட்டுமான தளங்களை திறம்பட பிரித்து, தனிமைப்படுத்தப்பட்ட பணியிடத்தை உருவாக்குகின்றன. அவை பிரிக்கப்பட்டு தேவைக்கேற்ப மீண்டும் இணைக்கப்படலாம்.
பட்டறை தனிமைப்படுத்தும் வலைகள் பொதுவாக தொழில்துறை பட்டறைகளில் பாதுகாப்பு உபகரணங்களாகப் பயன்படுத்தப்படுகின்றன, முதன்மையாக வேலை பகுதிகளைக் எல்லை நிர்ணயம் செய்வதற்கும், அபாயகரமான உபகரணங்களை தனிமைப்படுத்துவதற்கும், தொழிலாளர்களைப் பாதுகாப்பதற்கும் பயன்படுத்தப்படுகின்றன.
உட்புற வேலை பகுதிகளைப் பாதுகாக்க எங்கள் தயாரிப்புகளை உட்புற கிடங்கு ஃபென்சிங்காகவும் பயன்படுத்தலாம். அவை கிடங்குகள், தளவாட மையங்கள் மற்றும் தொழிற்சாலைகள் போன்ற பல்வேறு சேமிப்பு வசதிகளில் பரவலாகப் பயன்படுத்தப்படுகின்றன.
லிவேயுவான் உலோக பாதுகாப்பு வேலிகளுக்கான பொதுவான அளவுகள் பின்வருமாறு: 2 மீட்டர் நீளம் 1.5 மீட்டர் உயரம்; 2.5 மீட்டர் நீளம் 2 மீட்டர் உயரம்; மற்றும் 3 மீட்டர் நீளம் 2.5 மீட்டர் உயரம். தனிப்பயன் அளவுகள் கிடைக்கின்றன. எஃகு பொருட்களில் Q235B, Q355B, A36, மற்றும் A572 ஆகியவை அடங்கும், ஐரோப்பிய மற்றும் அமெரிக்க தரங்களை பூர்த்தி செய்கின்றன.
